Plan Co_14183_D : Maison contemporaine R+1, 173 M², avec 15 Containers maritimes de 6 M, F5...
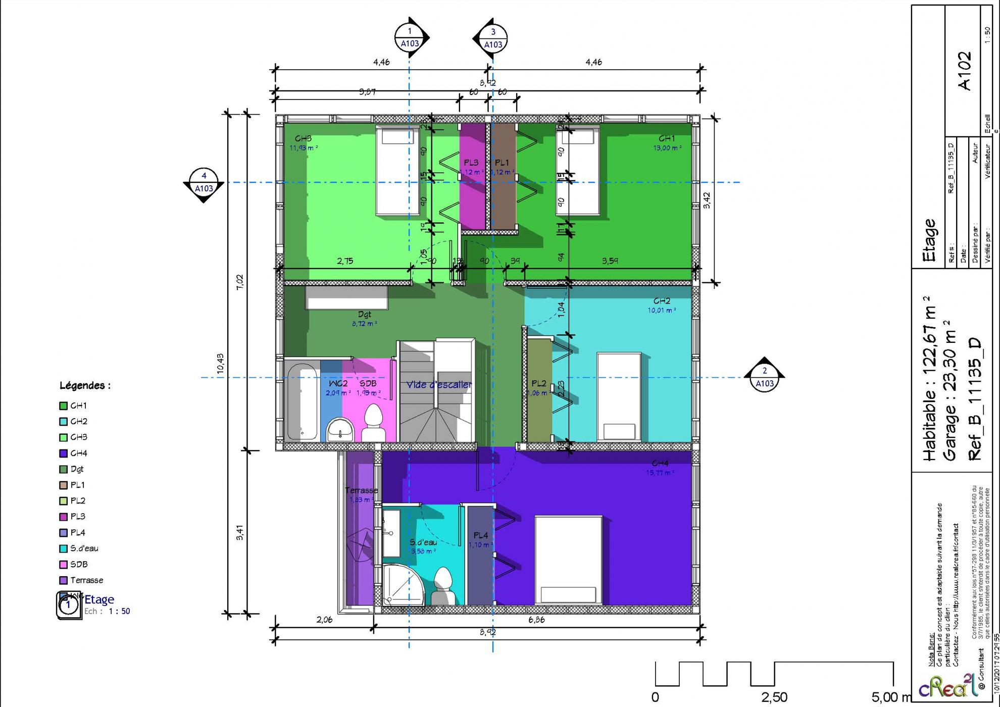
  Plan B_11135_D : Maison contemporaine R + 1, 4 chambres ayant 122 m² habitables et garage intégré.
| Prestations | PC -130 M² | PC Extension | DP | FAI - ESQ | APD | Conseil + 2 Visuels | 
| Plan de Situation |  |  |  | . |  | . | 
| Plan de Masse |  |  |  | . |  | . | 
| Plan des Façades et des Toitures |  |  |  |  |  | . | 
| Plan des Coupes |  |  |  |  |  | . | 
| Plan des Intérieures | . | . | . |  |  | . | 
| Plan des Détails | . | . | . | . |  | . | 
| Plan des Cotations | . | . | . | . |  | . | 
| Notice explicative |  |  | . | . | . | . | 
| Visuels Intégration dans le site |  |  | . | . | . |  | 
| Visuels Esquisse | . | . | . |  | . | . | 
| CERFA PC - DP |  |  |  | . | . | . | 
| Attestation RT2012 par BET Thermique |  | . | . | . | . | . | 
| Dossier rendu en PDF |  |  |  |  |  |  | 
| Dossier 2D ou 3D en DWG, RVT, SKP à la Demande | Option | Option | Option | Option | Option | . | 
| Déplacement sur site en Il-de-France à la Demande | Option | Option | Option | Option | Option | . | 
| Offres Forfaitaires | Voir + | Voir + | Voir + | Voir + | Voir + | Voir + | 
| Quelques Exemples des prestations | Présentations | 
| Exemple des visuels réalistes types Maison individuelle, Petit collectif R+2, Complexe des locaux d'Activité | Voir + | 
| Exemple la visite virtuelle un City Stade multi-sports | Voir + | 
| Exemple la visite virtuelle un ensemble des locaux d'activité | Voir + | 
| Exemple la visite virtuelle Projet un complexe judiciaire | Voir + | 
| Exemple la visite virtuelle un projet complexe judiciaire | Voir + | 
| Exemple projet d'Aménagement la Suite parentale, la Cuisine style d'atelier d'une villa | Voir + | 
| Exemple les Perspectives réalistes d'un grand villa luxueux | Voir + | 
| Exemple la visite virtuelle la nouvelle salle polyvalente à venir à Triel-sur-seine (78) | Voir + | 
| Exemple la visite virtuelle La place Marché Philippe Prévost à Triel-sur-seine (78) | Voir + | 
| Exemple le parcours visite virtuelle n°1 une grande stade de football | Voir + | 
| Exemple le parcours visite virtuelle n°2 une grande stade de football | Voir + | 
| Formulaire demande devis gratuit | Voir + |